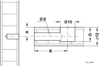
- Durchmesser: 15 mm
- für Holzdicke ab 16 mm
- Maß (A): 8 mm
- Bohrtiefe (D): 12,5 mm (+0,5 mm)
- Bolzenbohrung: Durchmesser 7 oder 8 mm, je nach gewähltem Verbindungsbolzen
- Bohrmaß (B): Abstand von Minifix-Gehäusemitte bis Vorderkante 24 oder 34 mm,
abhängig vom gewählten Verbindungsbolzen
- Ausführung: mit oder ohne Abdeckrand
- Antrieb: Kreuzschlitz PZ2, Flachklinge oder Innensechskant SW4
- Material: Zinkdruckguss
- Oberfläche: vernickelt
Angaben zur Produktsicherheit
Herstellerinformationen:
Häfele
, ,
| Produkteigenschaft |
Wert |
| Versandgewicht: |
0,02 kg
|
| Artikelgewicht: |
0,02 kg
|
| Inhalt: |
4,00 Stk.
|